
Australian
September 20, 2025
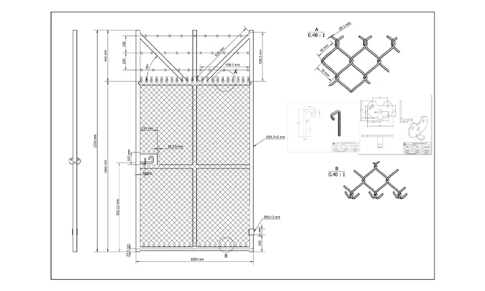
Customized Chain Link Gate
Used to protect various facilities

A Chinese trading company approached us on behalf of a leading Australian infrastructure developer to supply a large quantity of highly customized chain link gates. The project demanded strict adherence to detailed technical drawings, covering both standard and barbed wire variants, each with specific locking mechanisms and hinges to meet local safety and operational standards.


Product Specifications
Ensuring top-quality standards was a priority throughout the project:

Component width

Metal mesh thickness

Mesh width

Surface coating thickness

Product length

Packaging Securing

Container Loading

Shipping
The Chinese trading company relayed positive feedback from the Australian client:
"We are thoroughly impressed with the supplier's professionalism and dedication. Their attention to detail in interpreting our complex drawings and their flexibility in accommodating last-minute changes was exceptional. The quality of the gates, from construction to coating, fully meets Australian standards. They were a reliable partner who went the extra mile for our project."
С 2014 года Giant Fence поставляет профессиональные металлические ограждения для клиентов на 6 континентах. От производства до доставки мы объединяем скорость, настройку и надежность, чтобы удовлетворить ваши потребности.
Давайте строить свой проект вместе.